The Claremont series

The Claremont series cleverly combines modern features of a home with two living areas, 4 bedrooms & double garage without compromising space.

GET THE LOOK


Glebe

Glebe

Hunter

Hunter

Magnolia

Magnolia

New Traditional

New Traditional

Sorell

Sorell

Toorak

Toorak

BROWSE THE LINEUP

FLOOR PLANS


Claremont 14.7 ZL
3
2
1

136.32 sqm

Single Storey

9.71m Wide

15.47m Long

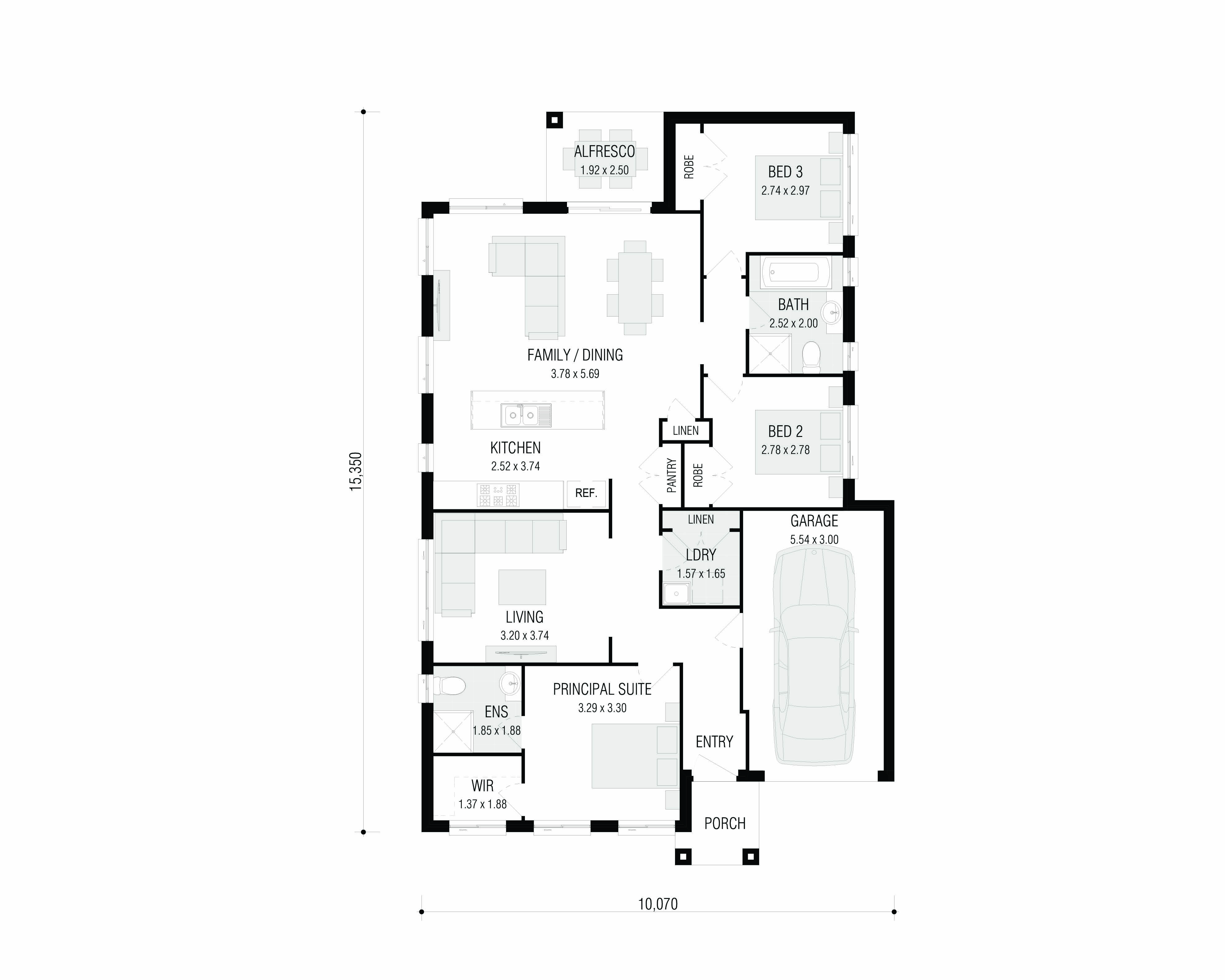
Claremont 15.1 ZL
3
2
1

140.66 sqm

Single Storey

10.07m Wide

15.35m Long

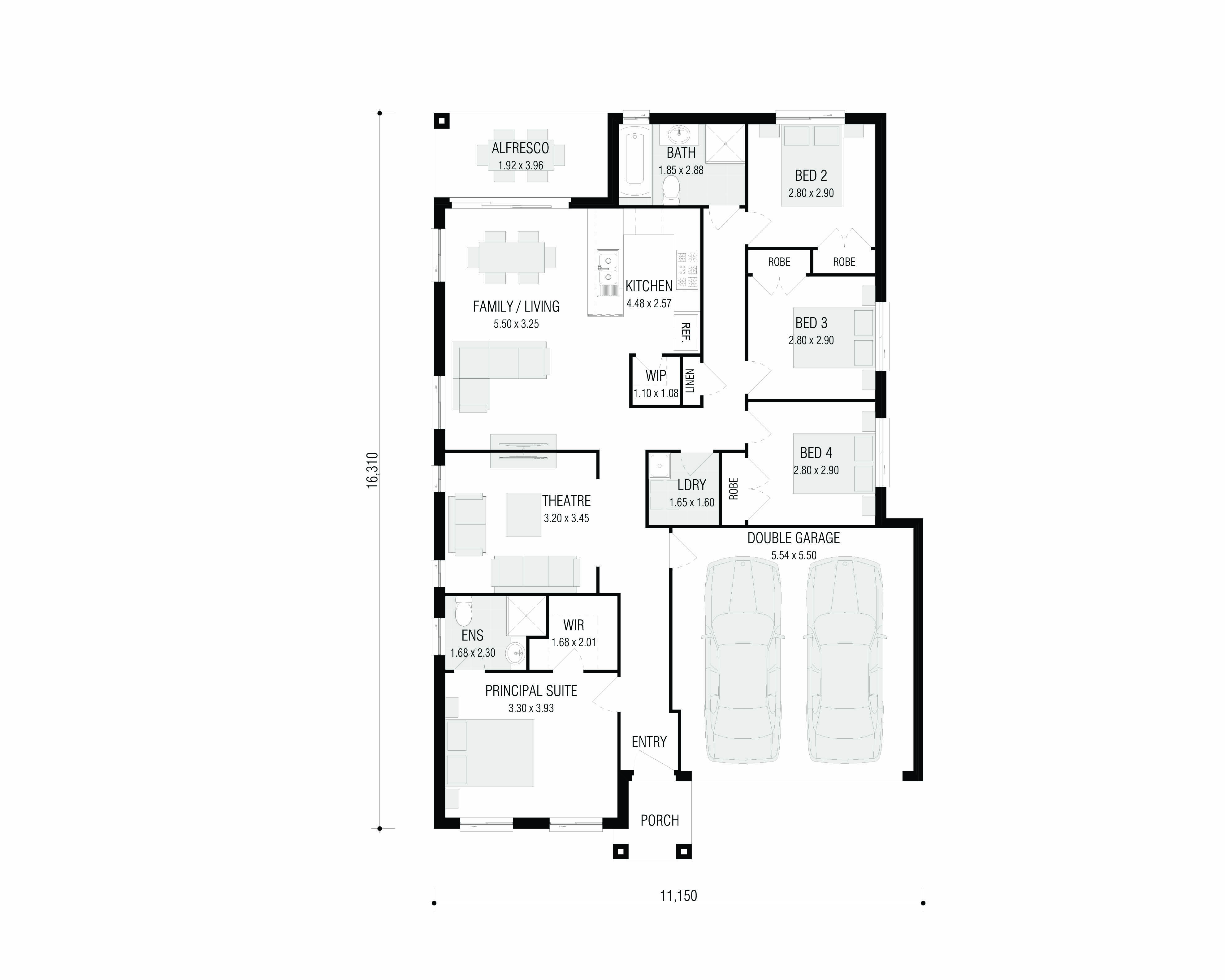
Claremont 18.2
4
2
2

169.65 sqm

Single Storey

11.15m Wide

16.31m Long

Claremont 19.2
4
2
2

178.36 sqm

Single Storey

11.15m Wide

16.31m Long

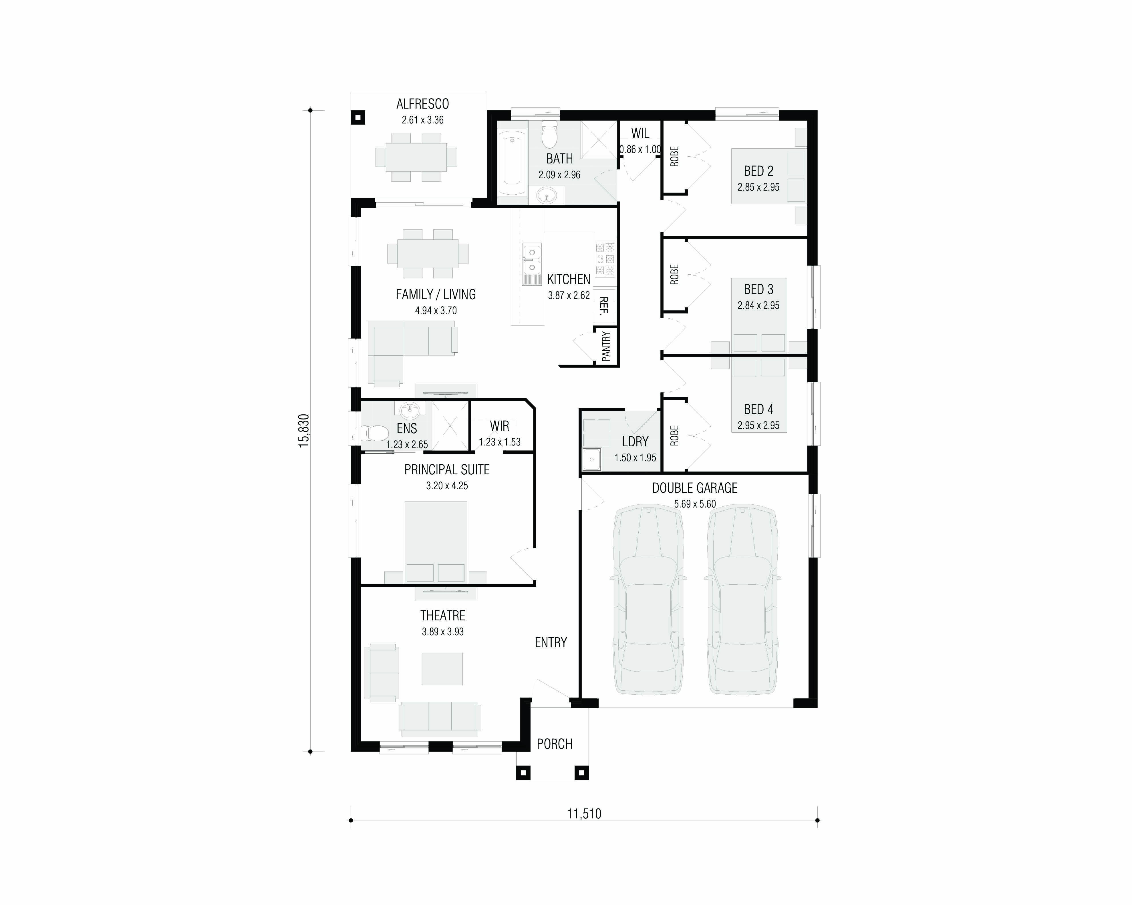
Claremont 19.3
4
2
2

178.87 sqm

Single Storey

11.51m Wide

15.83m Long

Claremont 19.3 MKII
4
2
2

178.87 sqm

Single Storey

11.51m Wide

15.83m Long

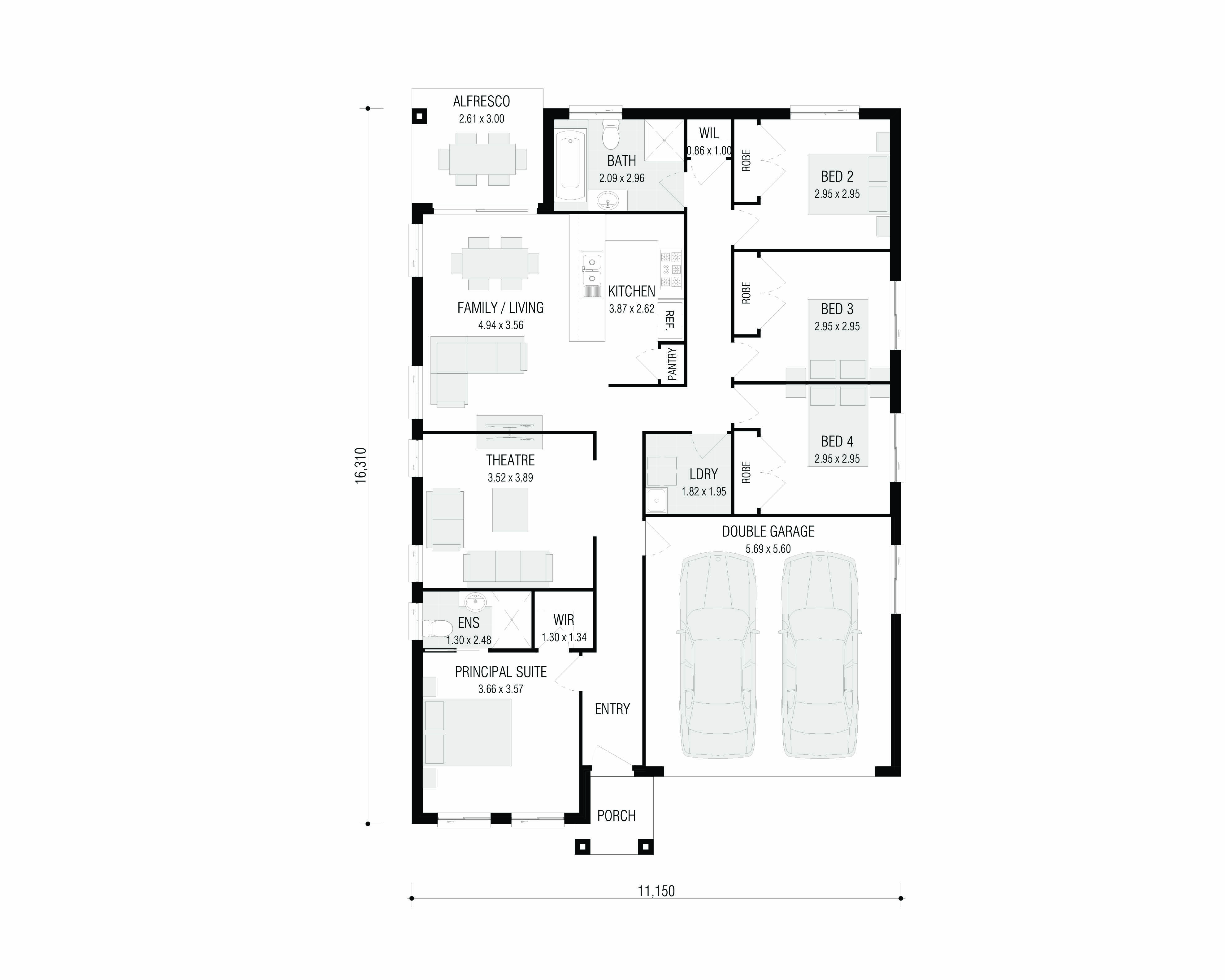
Claremont 19.6
4
2
2

181.66 sqm

Single Storey

11.05m Wide

17.51m Long

VIRTUAL TOURS